Aller au contenu principal
Traditionnelle Plain-Pied

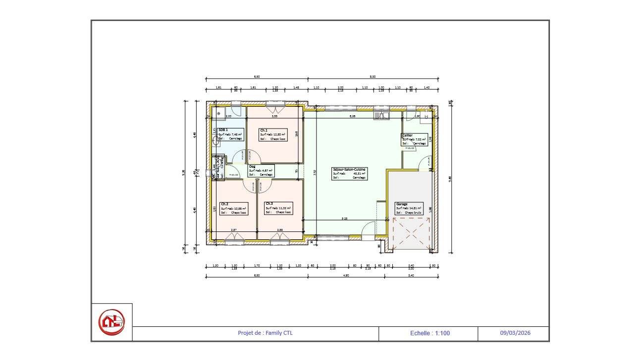
Family CTL

Maison traditionnelle de plain-pied d’environ 100 m² habitables avec 3 chambres, une belle pièce de vie ouverte, un cellier pratique et un garage intégré. Un modèle fonctionnel, convivial et parfaitement adapté à la vie de famille.

Maison familiale de plein pied 100 m²
Pièce de vie avec cuisine ouverte 45m²
3 Grandes chambres
Garage simple lié au cellier
Murs en brique BGV Thermo 2 (R = 1,25 m².K/W)
Isolation laine de verre Isover 100 mm (R = 3,15 m².K/W)
Excellente inertie thermique
100
3 Chambres
1 Sdb
Oui Garage
1 Niveaux
350 Terrain m²
A partir de
146 000 €
TTC hors terrain — Prix personnalisable

Plans de la maison

Cliquez sur un plan pour l'agrandir

Plan RDC — Family CTL
📋 Rez-de-chaussee
📄 Telecharger le plan complet (PDF)

A propos de ce modele

Cette maison de plain-pied offre une conception simple, fonctionnelle et agréable à vivre. Avec ses 3 chambres, sa pièce de vie ouverte, son cellier et son garage intégré, elle répond parfaitement aux attentes d’une famille recherchant une habitation confortable, bien organisée et facile à vivre au quotidien.

Pour garantir un haut niveau de qualité, cette maison est construite avec des matériaux sélectionnés pour leurs performances et leur durabilité. Les murs sont réalisés en brique BGV Thermo 2, une solution reconnue pour ses excellentes qualités thermiques. Elle offre une très bonne inertie, améliore le confort intérieur été comme hiver et participe à la performance énergétique globale de la maison.

La toiture est couverte en ardoise artificielle Orléane, un matériau apprécié pour son esthétique traditionnelle, sa résistance et sa longévité. Elle permet d’obtenir une couverture élégante, homogène et durable, parfaitement adaptée à une maison de caractère.

Le doublage intérieur est réalisé en laine de verre de 100 mm d’épaisseur, assurant une isolation thermique et phonique efficace. Ce choix permet de renforcer le confort intérieur, de réduire les pertes énergétiques et de répondre aux exigences actuelles de performance de l’habitat.

Grâce à cette association entre un plan bien conçu et des matériaux de qualité, cette maison constitue une solution fiable, confortable et pérenne pour un projet de construction serein.

✨ Etude personnalisee gratuite

Ce modele vous interesse ?

Recevez une etude personnalisee gratuite adaptee a votre terrain et votre budget.